Skip to content

Novy hydrant Traditional Cache

This cache has been archived.

Rico Reviewer: Archivace listingu keše pro nezájem ownera. Odarchivace se v těchto případech neprovádí.


Rico Reviewer - Comunity Volunteer Reviewer
Česká republika: Hlavní město Praha a Středočeský kraj

More
Hidden : 12/1/2016
Difficulty:
2 out of 5
Terrain:
1.5 out of 5

Size: Size:   small (small)

Join now to view geocache location details. It's free!

Watch

How Geocaching Works

Please note Use of geocaching.com services is subject to the terms and conditions in our disclaimer.

Geocache Description:

Jednoduchá rychlá keš věnovaná požární prevenci.

Požární prevence

Hasičský záchranný sbor České republiky (HZS ČR) má hlavní poslání – chránit životy a zdraví obyvatel a majetek před požáry a poskytovat účinnou pomoc při mimořádných událostech. Jeho úkolem je nejen likvidovat vzniklé požáry, ale jeho důležitou funkcí je i požární prevence, která omezí počty požárů a souvisejících majetkových škod. Nejlepší je požárům předejít než je složitě a pracně likvidovat.

Instalovaný hydrant

Nedílnou součástí každé projektové dokumentace pro všechny objekty se stalo požárně bezpečnostní řešení, které zpracovává projektant – specialista (autorizovaný technik / inženýr pro specializaci požární bezpečnosti staveb podle zákona č. 360/1992 Sb.) a které posuzuje plánovanou stavbu z hlediska požární ochrany objektu. Ověřuje, zda byly dodrženy předpisy a podmínky požární bezpečnosti staveb. U většiny staveb se zpracované požárně bezpečnostní řešení dává k posouzení orgánu státního požárního dozoru – příslušnému pracovišti prevence HZS příslušného kraje. HZS vydá žadateli stanovisko k předmětné projektové dokumentaci. Souhlasné stanovisko je nutnou podmínkou k vydání stavebního povolení na plánovanou stavbu.

Komplet

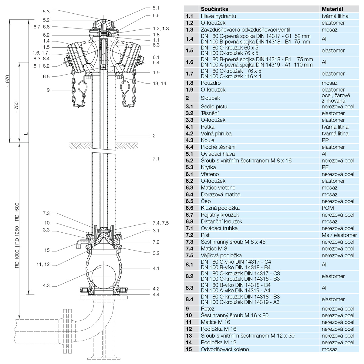
Jednou z věcí, kterou může projektant – specialista v požárně bezpečnostním řešení pro daný projekt předepsat je hydrant, který patří do skupiny stabilních hasicích zařízení. Tato keška Vás přivede k nadzemnímu hydrantu umístěnému v prostoru parkoviště u obchodního centra. Jedná se konkrétně o typ – Krammer Hydrant DUO Typ 230 – DN 100.

Řez

Additional Hints (Decrypt)

U

Decryption Key

A|B|C|D|E|F|G|H|I|J|K|L|M
-------------------------
N|O|P|Q|R|S|T|U|V|W|X|Y|Z

(letter above equals below, and vice versa)